La rehabilitació de la Casa Museu Enric Valor afronta ara la fase prèvia a l’obra, amb la previsió de licitar els treballs a principis de 2026. Es tracta d’un projecte llargament esperat que transformarà l’immoble natal de l’escriptor en un espai cultural i educatiu estable, obert a visites i activitats al voltant de la seua obra literària. El disseny ha estat elaborat per Arquitectura y Urbanismo Estudio Boix, SLP, dirigit per l’arquitecte Juan María Boix García, que ha adaptat la intervenció a criteris patrimonials i d’accessibilitat. L’antic projecte va haver de ser descartat per incompliments normatius, i l’actual equip en va assumir la redacció definitiva.
Presentació del projecte
El projecte es va presentar oficialment al poble de Castalla el passat 17 d’octubre, en el marc de la 8a Fira de la Fantasia, durant un acte públic en què l’Ajuntament va exposar el contingut de la futura rehabilitació i l’ús cultural previst per a l’espai. La presentació va comptar amb la intervenció de l’alcalde i de l’arquitecta municipal Elena Such, que van avançar que el projecte ja disposa d’una partida de 465.697 euros en els pressupostos de 2025, a la qual se sumarà la aportació de 272.707 euros de la Diputació per completar la inversió i avançar amb la licitació de les obres.
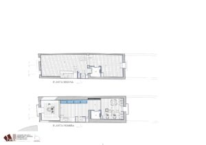
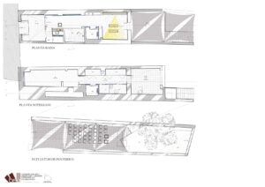
Distribució dels espais
L’immoble tindrà quatre nivells, entre ells un soterrani, i disposarà d’un jardí exterior que està previst utilitzar com a espai cultural a l’aire lliure. La planta baixa conservarà els elements originals de major valor històric, com la foraca, la cuina, els frescos i la forja, que formaran el primer espai museogràfic. A la segona planta se situaran els despatxos d’administració i els lavabos, mentre que la tercera planta es concebrà com una sala polivalent destinada a formació, tallers culturals o exposicions.
Funció educativa
Segons explica el director de la Càtedra Enric Valor, Joan Borja, “la finalitat última de la casa és la difusió de l’obra d’Enric Valor i la seua projecció pública”. Remarca que el projecte va molt més enllà d’una rehabilitació física: “no es tracta només de reformar un immoble, sinó de dotar-lo de vida cultural i educativa”. Per això, la casa naix amb una clara funció social vinculada al món educatiu. “Volem que siga un espai viu, amb escolars, amb visites regulars, amb programació estable”, assenyala.
Aula didàctica Enric Valor
L’obertura de la Casa Museu permetrà també recuperar l’aula didàctica Enric Valor, que ja va funcionar durant més d’un any abans de la rehabilitació, amb dues persones dedicades exclusivament a la tasca pedagògica. Una vegada el projecte estiga en marxa, l’Ajuntament i la Càtedra preveuen reactivar aquesta fórmula per tornar a situar Castalla com a referent en la difusió de l’autor. La Generalitat ha cedit l’ús de l’immoble al municipi per un període inicial de 10 anys prorrogables fins a 30, fet que permet assegurar-ne la gestió pública a llarg termini. Amb la licitació prevista per a principis de 2026, s’apunta a la possibilitat que les obres finalitzen entorn de 2027, encara sense data confirmada i condicionada als terminis d’execució.
Estudi d’arquitectura
Un element clau per entendre el recorregut del projecte és el canvi d’autoria tècnica. La primera redacció va ser elaborada per l’estudi de Santiago Varela durant l’etapa en què Antonio Bernabéu exercia l’alcaldia, però aquella proposta va quedar descartada per no ajustar-se a la normativa de patrimoni i accessibilitat, la qual cosa va paralitzar l’expedient durant anys. El projecte actual ha sigut assumit per Juan María Boix, actual president del Col·legi Territorial d’Arquitectes, que ha reformulat la intervenció i l’ha adequat als requisits exigits.


